À vendre – fonds de commerce à Lannion
Commerces/Negoce – Lannion (22300) – 59000€ FAI Emplacement n°1 pour…
59000€ FAI
29250 Saint Pol De Leon
Vente
231000€ FAI



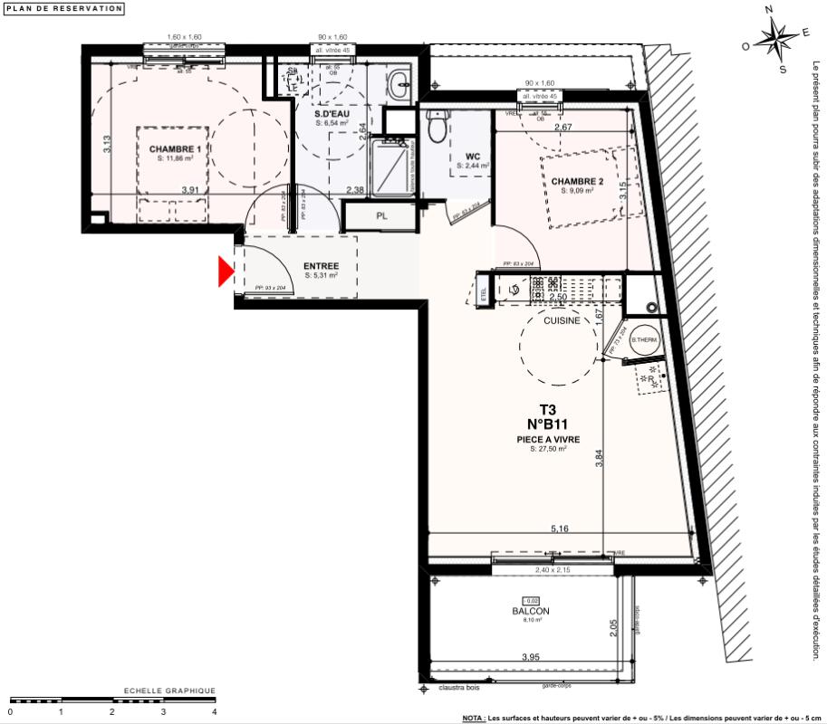
T3 – Saint Pol De Leon (29250) – 231000€ FAI
Venez découvrir votre futur lieu de vie ou de villégiature.
Situé à moins d’1 km du centre ville de SAINT POL DE LEON, cette nouvelle résidence vous offrira ce T3 orienté plein sud.
Les prestations de qualité vous assureront un confort quotidien et optimiseront la performance énergétique.
Contactez nous dès aujourd’hui au 02.96.43.24.25 afin de construire ensemble votre projet immobilier.
BREIZH PATRIMMO | Raison sociale : BREIZH PATRIMMO | Adresse siège social : 5, rue des clos - 22310 PLESTIN LES GREVES | Siret : 90902108100015 | RCS : SAINT BRIEUC | Numero TVA Intracommunautaire : FR17909021081 | Forme juridique : SAS | Capital social : 10 000 € | Assurance RCP : 10933763404 | Carte T : CPI22032022000000002 | Date de délivrance : NC | Lieu de délivrance : NC | Caisse de garantie financière : NC. | N° de caisse de garantie : NC | Adresse caisse de garantie : NC | Montant de la garantie financière : NC | Nom du médiateur : MCP MEDIATION | Adresse du médiateur : 12 SQUARE DESNOUETTES 75015 PARIS | Adresse du site : www.mcpmediation.org | Date d'obtention du label : 02/01/2023 Entreprise juridiquement et financièrement indépendante
Commerces/Negoce – Lannion (22300) – 59000€ FAI Emplacement n°1 pour…
59000€ FAI
Propriété – Plestin Les Greves (22310) – 350000€ FAI Découvrez…
350000€ FAI